Arte 3RL-100h-4s er produsert i tykt platestål og har et dypt brennkammer, som minsker askesøl.
Brennkammeret er godt isolert i Thermote-plater og sikrer en god forbrennings temperatur. Innsatsen har en heve og senkedør, som i seg selv er en flott design detalj - men byr også på praktiske fordeler.
Glasset på Arte 3RL-100h-4s, kan enkelt åpnes på tradisjonell måte for lettere rengjøring på innsiden.
Elektrisk døråpner SESAM.
4S: Trykket sort siluettkant på glasset på 4 sider.
Innsatsen er rentbrennende og testet etter de norske særkravene (NS 3059).
| Dør (B): |
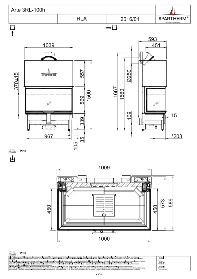
450/967/450 mm |
| Dør (H): |
569 mm |
| Total (B): |
1000 mm |
| Total (D): |
586 mm |
| Total (H): |
1667 mm (+35 mm) |
VENTILER
| Innluft: |
min. 572cm² |
| Utluft: |
min. 858cm² |
Ventiler i ramme beregnes med 40 ganger med maks kw på inn/under ventil(er) og 60 ganger med maks kW for ut/over ventil(er).

Spartherm er en av Tysklands største produsenter av forskjellige typer ildsteder. Produsenten legger ned mye tid og arbeid i å produsere designprodukter i toppkvalitet.